м2
соток

Дом 311м², участок 5,9 сот.

Павловск, ул Красный Пахарь, д. 65
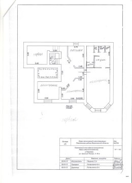
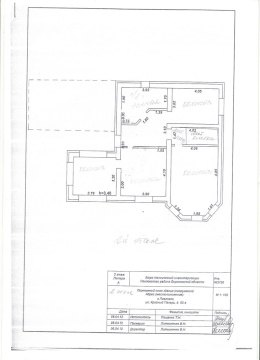
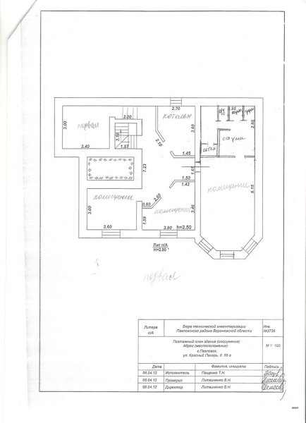
(Земли населенных пунктов / Индивидуальное жилищное строительство). Дом: этажность - 2.
Коттедж с гаражом в черте города Павловск расположен в живописной излучине Дона, прямо на берегу реки. Из окон открывается вид на реку и долину ( см. фото).

Высота потолков - 3.15 м и 2.5 м цокольный этаж..

В доме имеется отдельно цокольный этаж с помещением под сауну, бытовые помещения для стирки белья и др. назначения. Из помещения цокольного этажа имеется вход в погреб.

Дом оштукатурен, газ на границе участка, вода и электричество в доме.

Прямо перед домом имеется спуск к реке.

Стены коттеджа из пеноблока облицованы огнеупорным кирпичом; стены цокольного этажа железобетонные блоки; перекрытие цокольного и первого этажа железобетонные плиты перекрытия; перекрытие второго этажа дерево, утеплитель рулонный; крыша металлическая черепица;

Окна терм(тройной) стеклопакет с напылением, москитные сетки;

Гаражные ворота секционные .

Продает собственник - юридическое лицо. Торг для потенциального покупателя уместен.

Возможна Ипотека.
Тип предложения Продам
География Павловск, Воронежская область, Павловский район
Адрес
ул Красный Пахарь, д. 65
Вид участка
Земли поселений (ИЖС, ЛПХ)
Площадь дома
311,00 м2
Площадь участка
5,90 соток
Дополнительно
возможность ПМЖ
Условия сделки
ипотека

Все ваши сообщения мы читаем и все пожелания учитываем, но, к сожалению, ответ не гарантируем.

Если вы расчитываете получить ответ, не забудьте заполнить это поле.
Отправить

Сообщение будет отправлено на электронную почту автора объявления. Ваш электронный адрес будет ему доступен для ответа.

Отправить
Отправить